Reihenendhaus Bickendorf

Innenansicht eines Rohbaus mit Holzrahmen, Fenster und einem Arbeiter, der mit Bauarbeiten beschäftigt ist.

Anbau in Holz

Grundriss eines modernen Wohnraums mit Sitzbereich, Essplatz und Zugang zur Terrasse.

Erdgeschoss

Ein modernes, graues Holzhaus mit großen Fenstern, umgeben von üppigem, grünem Garten und dekorativen Pflanzen.

Anbau

Eine architektonische Darstellung eines Hauses mit einem teilweise sichtbaren Holzrahmen.

Bestand & Anbau

Die Wand eines Hauses mit zwei großen Fenstern und einem dezenten Putz in hellen Farbtönen.

Putz im Bestand

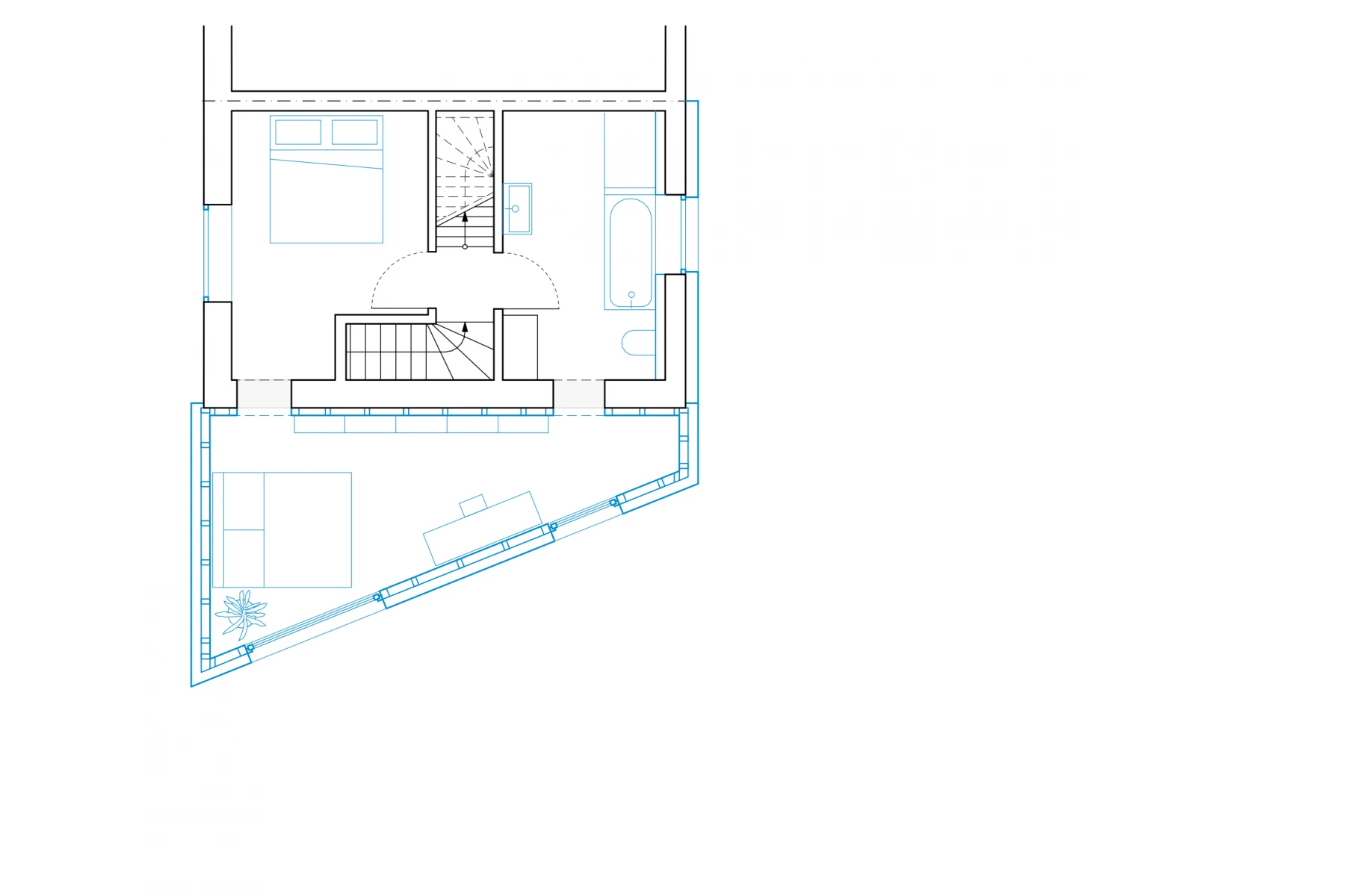
Ein Grundriss mit Schlafzimmer, Bad und Wohnzimmer in einem modernen, offenen Layout.

Obergeschoss

Das Reihenendhaus liegt im Zentrum der Siedlung Bickendorf I. Zwischen 1916-20 entstanden hier nach den Plänen der Ar…

Das Reihenendhaus liegt im Zentrum der Siedlung Bickendorf I. Zwischen 1916-20 entstanden hier nach den Plänen der Architekten Grod und Riphan Kleinstwohnungen für Angestellte und Arbeiter. Der seitliche Anbau ermöglicht es den Eingriff im bestehenden Haus gering zu halten und trotzdem eine Neuordnung des kleinteiligen Bestandes zu Schaffen. Die steilen Treppen bleiben erhalten und die Erschließungsfläche wird auf ein Minimum reduziert. Das Erdgeschoss wird um Küche und Gäste-WC im Anbau ergänzt. Im Obergeschoss kommt zum Bad und Schlafzimmer ein flexibel nutzbares Zimmer dazu. Im Dachgeschoss ermöglicht der Anbau ein weiteres kleines Kinderzimmer.

Realisierung

2024-2025

Nutzung

Wohnen

Bauleute

Privat

mehr lesen